top of page

銀行街のオフィス物件

物件番号
BF10004
物件タイプ
賃貸オフィス
​エリア
Innenstadt
住所
Mainzer Landstraße 51, Frankfurt am Main, ドイツ
​面積
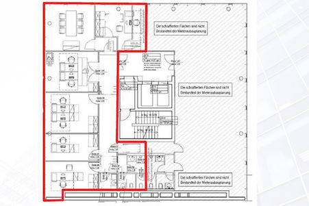
145,57sqm
階数
日本式5階
賃料
3784,32-euro
平米単価
26,-euro
共益費
1091,76-euro
共益費単価
7,5-euro
​駐車場
地下2台可能
​駐車場賃料
pro240,-euro
保証金
賃料3ヶ月分
物件の特徴

中央駅へのアクセスよし
地下駐車場2台利用可能
飲食店も多い立地
Messe会場も近い立地

STARTS Deutschland GmbH Frankfurt Office

Taunusanlage 8

60329 Frankfurt

デュッセルドルフのサイトはこちらから➡

Copyright © 2016 STARTS Corporation. ALL Rights Reserved
bottom of page